Фильтровентиляционная установка ФМА-1800-2У
Благодаря фильтрующим элементам на бумажно-тканевой основе позволяет осуществить полномасштабную очистку воздуха от аэрозолей (в том числе сварочного) и мелкодисперсной сухой неслипающейся пыли, выделяющейся при различных производственных процессах. Воздухоприёмные устройства позволяют максимально приблизить воздухоприёмную воронку к источнику выделения вредных веществ.
Фильтры предназначены для очистки воздуха от сварочного аэрозоля, образующегося при сварке, ручной газовой резке металлов, а также для очистки от мелкодисперсной сухой невзрывоопасной, неслипающейся пыли, образующейся при порошковой окраске изделий, механической обработке изделий из металла и пластмасс.
Максимальная температура загрязненного воздуха не должна превышать 60ºС.
Применение:
- сварочные цеха
- цеха механической обработки металла
- цеха механической обработки пластмасс
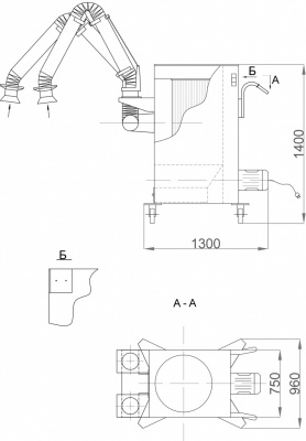
Фильтр ФМА-1800-2 состоит из корпус с двумя воздухоприёмными устройствами самофиксирующимися в пространстве (в верхней части), снабжен колесами и ручками для перемещению полу. Внутри корпуса расположен блок с предфильтром, искрогасителем и шестью фильтрующими элементами картриджого типа.
Фильтры ФМА-1800-2 снабжены вентилятором и пусковой аппаратурой, кабелем питания длиной 5м, разъёмом для подключения к электросети.
Фильтры выпускаются с двумя воздуховытяжными устройствами d=160мм в следующих модификациях:
- ФМА-1800-2 с двумя устройствами Rобсл. =2,0м
- ФМА-1800-2У с двумя устройствами Rобсл.=3,2м
- ФМА-1800-2УМ с двумя устройствами Rобсл.=4м
Дополнительно фильтр может быть оснащен:
- угольной кассетой для доочистки газообразной фазы сварочного аэрозоля.
|
Производительность вентилятора, м3/час
|
1800 |
|
Мощность электродвигателя вентилятора, кВт
|
1,5 |
|
Радиус действия ПВУ, м
|
3,2 |
|
Габаритные размеры, мм
|
1470x1110x960 |
|
Масса, кг
|
155 |




