Кран стреловой поворотный КСП-320 "МАСТЕР"
Хиты продаж
Мы советуем
Кран стреловой поворотный КСП-320 Мастер устанавливается на земле или перекрытиях зданий и сооружений и предназначен для подъема/спуска и горизонтального перемещения по окружности различных строительных материалов и оборудования.
Кран полностью разборный, собственный вес отдельных элементов не превышает 50кг, что позволяет легко устанавливать его на кровлю силой двух человек без дополнительного использования грузоподъемной техники. Кран поставляется в разобраном виде.
Кран Мастер имеет надежный тормоз - электромагнитный нормальнозамкнутый, входит в состав электродвигателя. Приборы и устройства безопасности - конечный выключатель ограничения высоты подъема груза, отключение от электросети при перегрузке механизма подъема груза.
Допускается эксплуатация крана при температуре окружающей среды не выше +40С и не ниже -40С. В части климатических факторов кран соответствует исполнению У2 по ГОСТ 15150 (кран должен быть защищен от воздействия атмосферных осадков).
Кран стреловой поворотный КСП-320 Мастер является грузоподъемным механизмом, который монтируется непосредственно на месте эксплуатации. Площадка, на которой установлен кран, должна иметь уклон не более 3°. Если уклон больше, то кран необходимо выставить при помощи опорных домкратов крана.
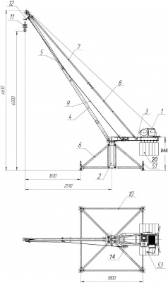
Кран состоит из следующих основных узлов и деталей: рамы 3, лебедки 1, ног 6, верхней стрелы 5 и нижней стрелы 4, колонны 2, стяжки 7 и укосины 8, крюковой подвески 11. Сборочные единицы крана крепятся между собой стандартными крепежными изделиями и деталями, входящими в комплектацию крана. Устойчивость крана во время эксплуатации обеспечивается контргрузами 20 в количестве 6 шт. Колонна 2, ноги 6 и стяжки 10 образуют единую платформу. К колонне 2 при помощи болтового соединения М16 крепится рама 3. Рама изготовлена из швеллера и квадратной трубы, соединенных между собой приварными косынками.
К раме крепится лебедка 1. В корпусе лебедки закреплены электродвигатель и барабан. Электродвигатель передает вращающий момент на барабан через двухступенчатый редуктор, закрытый защитным кожухом. На щеке лебедки закреплен электрический пульт. От электропульта отходит один кабель с кнопочным тельферным постом 53 и микровыключателем 14, закрепленным на раме.
В состав электрооборудования входят: электродвигатель со встроенным электромагнитным тормозом, пост тельферный, микровыключатель, пускатели, выключатель автоматический.
Кран поставляется в разобраном виде. На фото показаны отгрузочные места: 1 - Электрическая лебедка для подъема опускания груза (в ящике); 2 - Колонна; 3 - Поворотная рама; 4 - Ноги (детали опорной платформы); 5 - стрела; 6 - стяжки. В комплекте поставки также имеются железобетонные контргрузы в количестве 6 штук.
Кран стреловой Мастер КСП-320 удобен в работе и прост в техническом обслуживании. Срок гарантии - 12 месяцев со дня ввода крана в эксплуатацию, но не более 18 месяцев со дня отгрузки с предприятия-изготовителя. Срок гарантии не распространяется на грузовой канат. Срок службы крана 3 года. За этот период кран должен пройти 3 текущих ремонта.
Кран полностью разборный, собственный вес отдельных элементов не превышает 50кг, что позволяет легко устанавливать его на кровлю силой двух человек без дополнительного использования грузоподъемной техники. Кран поставляется в разобраном виде.
Кран Мастер имеет надежный тормоз - электромагнитный нормальнозамкнутый, входит в состав электродвигателя. Приборы и устройства безопасности - конечный выключатель ограничения высоты подъема груза, отключение от электросети при перегрузке механизма подъема груза.
Допускается эксплуатация крана при температуре окружающей среды не выше +40С и не ниже -40С. В части климатических факторов кран соответствует исполнению У2 по ГОСТ 15150 (кран должен быть защищен от воздействия атмосферных осадков).
Кран стреловой поворотный КСП-320 Мастер является грузоподъемным механизмом, который монтируется непосредственно на месте эксплуатации. Площадка, на которой установлен кран, должна иметь уклон не более 3°. Если уклон больше, то кран необходимо выставить при помощи опорных домкратов крана.
Кран состоит из следующих основных узлов и деталей: рамы 3, лебедки 1, ног 6, верхней стрелы 5 и нижней стрелы 4, колонны 2, стяжки 7 и укосины 8, крюковой подвески 11. Сборочные единицы крана крепятся между собой стандартными крепежными изделиями и деталями, входящими в комплектацию крана. Устойчивость крана во время эксплуатации обеспечивается контргрузами 20 в количестве 6 шт. Колонна 2, ноги 6 и стяжки 10 образуют единую платформу. К колонне 2 при помощи болтового соединения М16 крепится рама 3. Рама изготовлена из швеллера и квадратной трубы, соединенных между собой приварными косынками.
К раме крепится лебедка 1. В корпусе лебедки закреплены электродвигатель и барабан. Электродвигатель передает вращающий момент на барабан через двухступенчатый редуктор, закрытый защитным кожухом. На щеке лебедки закреплен электрический пульт. От электропульта отходит один кабель с кнопочным тельферным постом 53 и микровыключателем 14, закрепленным на раме.
В состав электрооборудования входят: электродвигатель со встроенным электромагнитным тормозом, пост тельферный, микровыключатель, пускатели, выключатель автоматический.
Кран поставляется в разобраном виде. На фото показаны отгрузочные места: 1 - Электрическая лебедка для подъема опускания груза (в ящике); 2 - Колонна; 3 - Поворотная рама; 4 - Ноги (детали опорной платформы); 5 - стрела; 6 - стяжки. В комплекте поставки также имеются железобетонные контргрузы в количестве 6 штук.
Кран стреловой Мастер КСП-320 удобен в работе и прост в техническом обслуживании. Срок гарантии - 12 месяцев со дня ввода крана в эксплуатацию, но не более 18 месяцев со дня отгрузки с предприятия-изготовителя. Срок гарантии не распространяется на грузовой канат. Срок службы крана 3 года. За этот период кран должен пройти 3 текущих ремонта.
Подробнее
219 300 ₽
Наличие уточняйте
-
+
В корзину
Обращаем Ваше внимание на то, что приведенные цены, характеристики и фотографии товаров носят исключительно ознакомительный характер и не являются публичной офертой, определяемой пунктом 2 статьи 437 Гражданского кодекса Российской Федерации.
Описание
Кран стреловой поворотный КСП-320 Мастер устанавливается на земле или перекрытиях зданий и сооружений и предназначен для подъема/спуска и горизонтального перемещения по окружности различных строительных материалов и оборудования.
Кран полностью разборный, собственный вес отдельных элементов не превышает 50кг, что позволяет легко устанавливать его на кровлю силой двух человек без дополнительного использования грузоподъемной техники. Кран поставляется в разобраном виде.
Кран Мастер имеет надежный тормоз - электромагнитный нормальнозамкнутый, входит в состав электродвигателя. Приборы и устройства безопасности - конечный выключатель ограничения высоты подъема груза, отключение от электросети при перегрузке механизма подъема груза.
Допускается эксплуатация крана при температуре окружающей среды не выше +40С и не ниже -40С. В части климатических факторов кран соответствует исполнению У2 по ГОСТ 15150 (кран должен быть защищен от воздействия атмосферных осадков).
Кран стреловой поворотный КСП-320 Мастер является грузоподъемным механизмом, который монтируется непосредственно на месте эксплуатации. Площадка, на которой установлен кран, должна иметь уклон не более 3°. Если уклон больше, то кран необходимо выставить при помощи опорных домкратов крана.
Кран состоит из следующих основных узлов и деталей: рамы 3, лебедки 1, ног 6, верхней стрелы 5 и нижней стрелы 4, колонны 2, стяжки 7 и укосины 8, крюковой подвески 11. Сборочные единицы крана крепятся между собой стандартными крепежными изделиями и деталями, входящими в комплектацию крана. Устойчивость крана во время эксплуатации обеспечивается контргрузами 20 в количестве 6 шт. Колонна 2, ноги 6 и стяжки 10 образуют единую платформу. К колонне 2 при помощи болтового соединения М16 крепится рама 3. Рама изготовлена из швеллера и квадратной трубы, соединенных между собой приварными косынками.
К раме крепится лебедка 1. В корпусе лебедки закреплены электродвигатель и барабан. Электродвигатель передает вращающий момент на барабан через двухступенчатый редуктор, закрытый защитным кожухом. На щеке лебедки закреплен электрический пульт. От электропульта отходит один кабель с кнопочным тельферным постом 53 и микровыключателем 14, закрепленным на раме.
В состав электрооборудования входят: электродвигатель со встроенным электромагнитным тормозом, пост тельферный, микровыключатель, пускатели, выключатель автоматический.
Кран поставляется в разобраном виде. На фото показаны отгрузочные места: 1 - Электрическая лебедка для подъема опускания груза (в ящике); 2 - Колонна; 3 - Поворотная рама; 4 - Ноги (детали опорной платформы); 5 - стрела; 6 - стяжки. В комплекте поставки также имеются железобетонные контргрузы в количестве 6 штук.
Кран стреловой Мастер КСП-320 удобен в работе и прост в техническом обслуживании. Срок гарантии - 12 месяцев со дня ввода крана в эксплуатацию, но не более 18 месяцев со дня отгрузки с предприятия-изготовителя. Срок гарантии не распространяется на грузовой канат. Срок службы крана 3 года. За этот период кран должен пройти 3 текущих ремонта.
Кран полностью разборный, собственный вес отдельных элементов не превышает 50кг, что позволяет легко устанавливать его на кровлю силой двух человек без дополнительного использования грузоподъемной техники. Кран поставляется в разобраном виде.
Кран Мастер имеет надежный тормоз - электромагнитный нормальнозамкнутый, входит в состав электродвигателя. Приборы и устройства безопасности - конечный выключатель ограничения высоты подъема груза, отключение от электросети при перегрузке механизма подъема груза.
Допускается эксплуатация крана при температуре окружающей среды не выше +40С и не ниже -40С. В части климатических факторов кран соответствует исполнению У2 по ГОСТ 15150 (кран должен быть защищен от воздействия атмосферных осадков).
Кран стреловой поворотный КСП-320 Мастер является грузоподъемным механизмом, который монтируется непосредственно на месте эксплуатации. Площадка, на которой установлен кран, должна иметь уклон не более 3°. Если уклон больше, то кран необходимо выставить при помощи опорных домкратов крана.
Кран состоит из следующих основных узлов и деталей: рамы 3, лебедки 1, ног 6, верхней стрелы 5 и нижней стрелы 4, колонны 2, стяжки 7 и укосины 8, крюковой подвески 11. Сборочные единицы крана крепятся между собой стандартными крепежными изделиями и деталями, входящими в комплектацию крана. Устойчивость крана во время эксплуатации обеспечивается контргрузами 20 в количестве 6 шт. Колонна 2, ноги 6 и стяжки 10 образуют единую платформу. К колонне 2 при помощи болтового соединения М16 крепится рама 3. Рама изготовлена из швеллера и квадратной трубы, соединенных между собой приварными косынками.
К раме крепится лебедка 1. В корпусе лебедки закреплены электродвигатель и барабан. Электродвигатель передает вращающий момент на барабан через двухступенчатый редуктор, закрытый защитным кожухом. На щеке лебедки закреплен электрический пульт. От электропульта отходит один кабель с кнопочным тельферным постом 53 и микровыключателем 14, закрепленным на раме.
В состав электрооборудования входят: электродвигатель со встроенным электромагнитным тормозом, пост тельферный, микровыключатель, пускатели, выключатель автоматический.
Кран поставляется в разобраном виде. На фото показаны отгрузочные места: 1 - Электрическая лебедка для подъема опускания груза (в ящике); 2 - Колонна; 3 - Поворотная рама; 4 - Ноги (детали опорной платформы); 5 - стрела; 6 - стяжки. В комплекте поставки также имеются железобетонные контргрузы в количестве 6 штук.
Кран стреловой Мастер КСП-320 удобен в работе и прост в техническом обслуживании. Срок гарантии - 12 месяцев со дня ввода крана в эксплуатацию, но не более 18 месяцев со дня отгрузки с предприятия-изготовителя. Срок гарантии не распространяется на грузовой канат. Срок службы крана 3 года. За этот период кран должен пройти 3 текущих ремонта.
Характеристики
|
Грузоподъемность, тонн
|
0.32 |
|
Высота подъема, м
|
60/80 |
|
Напряжение питания, В
|
3x380 |
|
Мощность двигателя, кВт
|
1.7 |
|
Вылет стрелы, м
|
2.65 |
|
Угол поворота стрелы, °
|
360 |
|
Высота подъема при уст. на земле, м
|
4.0 |
|
Макс. скорость подъема (опускания) груза, м/мин
|
22.0 |
|
Опорная площадь, м
|
1.8 x 1.8 |
|
Макс. уклон опорной поверхности, °
|
3 |
|
Диаметр каната, мм
|
5.5 |
|
Режим работы по ГОСТ 25835
|
3М/В3 |
|
Габаритные размеры, мм
|
см. схему |
|
Масса противовеса, кг
|
390 |
|
Масса, кг
|
260 |












