Устройство перегрузочное мобильное УПМ-1.0-3000-4000
Устройство перегрузочное мобильное (УПМ) или как его еще называют мобильное перегрузочное устройство (МПУ), грузоподъемностью в стандартном исполнении до 1000 кг, предназначено для проведения погрузочно-разгрузочных работ на различных площадках, не оснащенных грузоподъемной техникой и на складах в отсутствии стационарных грузоподъемных механизмов и погрузчиков. Используется как в закрытых помещениях, так и на открытом воздухе.
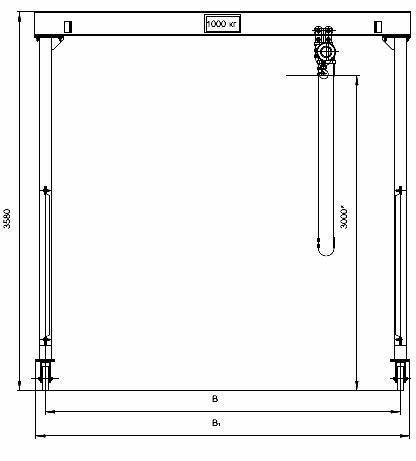
Грузоподъемным органом, обеспечивающим вертикальную тягу может быть любая ручная цепная таль грузоподъемностью 1000 кг с подходящей под двутавр балки кошкой, например тали серии ТРШБп.
Устройство оснащено 4-мя полноповоротными колесами, 2 из которых имеют тормоз, что обеспечивает мобильность в условиях стесненного пространства. Устройство перегрузочное выпускается в 4 модификациях с различной шириной проема.
Эти устройства производятся в базовых вариантах, а также могут быть исполнены в варианте нестандартного подъемно-транспортного оборудования по индивидуальным техническим заданиям заказчика.
Для более точного расчета нестандартного козлового крана, подготовительных и монтажных работ рекомендуем Вам заполнить опросный лист.
Грузоподъемным органом, обеспечивающим вертикальную тягу может быть любая ручная цепная таль грузоподъемностью 1000 кг с подходящей под двутавр балки кошкой, например тали серии ТРШБп.
Устройство оснащено 4-мя полноповоротными колесами, 2 из которых имеют тормоз, что обеспечивает мобильность в условиях стесненного пространства. Устройство перегрузочное выпускается в 4 модификациях с различной шириной проема.
Эти устройства производятся в базовых вариантах, а также могут быть исполнены в варианте нестандартного подъемно-транспортного оборудования по индивидуальным техническим заданиям заказчика.
Для более точного расчета нестандартного козлового крана, подготовительных и монтажных работ рекомендуем Вам заполнить опросный лист.
Подробнее
135 000 ₽
Наличие уточняйте
-
+
В корзину
Обращаем Ваше внимание на то, что приведенные цены, характеристики и фотографии товаров носят исключительно ознакомительный характер и не являются публичной офертой, определяемой пунктом 2 статьи 437 Гражданского кодекса Российской Федерации.
Описание
Устройство перегрузочное мобильное (УПМ) или как его еще называют мобильное перегрузочное устройство (МПУ), грузоподъемностью в стандартном исполнении до 1000 кг, предназначено для проведения погрузочно-разгрузочных работ на различных площадках, не оснащенных грузоподъемной техникой и на складах в отсутствии стационарных грузоподъемных механизмов и погрузчиков. Используется как в закрытых помещениях, так и на открытом воздухе.
Грузоподъемным органом, обеспечивающим вертикальную тягу может быть любая ручная цепная таль грузоподъемностью 1000 кг с подходящей под двутавр балки кошкой, например тали серии ТРШБп.
Устройство оснащено 4-мя полноповоротными колесами, 2 из которых имеют тормоз, что обеспечивает мобильность в условиях стесненного пространства. Устройство перегрузочное выпускается в 4 модификациях с различной шириной проема.
Эти устройства производятся в базовых вариантах, а также могут быть исполнены в варианте нестандартного подъемно-транспортного оборудования по индивидуальным техническим заданиям заказчика.
Для более точного расчета нестандартного козлового крана, подготовительных и монтажных работ рекомендуем Вам заполнить опросный лист.
Грузоподъемным органом, обеспечивающим вертикальную тягу может быть любая ручная цепная таль грузоподъемностью 1000 кг с подходящей под двутавр балки кошкой, например тали серии ТРШБп.
Устройство оснащено 4-мя полноповоротными колесами, 2 из которых имеют тормоз, что обеспечивает мобильность в условиях стесненного пространства. Устройство перегрузочное выпускается в 4 модификациях с различной шириной проема.
Эти устройства производятся в базовых вариантах, а также могут быть исполнены в варианте нестандартного подъемно-транспортного оборудования по индивидуальным техническим заданиям заказчика.
Для более точного расчета нестандартного козлового крана, подготовительных и монтажных работ рекомендуем Вам заполнить опросный лист.
Характеристики
|
Грузоподъемность, тонн
|
1.0 |
|
Длина пролета, м
|
4 |
|
Высота подъема, м
|
зависит от тали |
|
Высота крана, м
|
3 |
|
Режим работы по ISO 4301
|
А1 |
|
Режим работы по ГОСТ 25546-82
|
1К |
|
Категория размещения крана
|
У3 |
|
Сейсмическая устойчивость по шкале MSK64, баллов
|
6 |
|
Температурный режим работы, °С
|
-20...+40 |
|
Исполнение крана
|
общепромышленное |
|
Масса крана, тн
|
0.32 |
|
Габаритные размеры, мм
|
см. схему |




