Двухстоечный подъемник T4S
Описание
https://www.youtube.com/watch?v=f9KBxAGKZNE
Двухстоечный подъемник СТОРМ T4s – обладает нижней синхронизацией и грузоподъемностью до 4 тонн, предназначен для подъема легковых автомобилей всех моделей и марок при их техническом обслуживании и ремонте. Модель T4s отличается качественной немецкой гидравликой. Толщина металла в стойках - 5,2 мм, толщина тросов синхронизации - 9 мм.
Особенности:
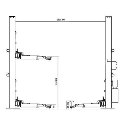
ширина между стойками - 2800 мм;
минимальная высота подхвата – 100 мм;
лапы усиленные, прямого типа и одинаковой длины. Конец лап оснащен 2-х ступенчатой винтовой настройкой 10-19 см;
разворот лап составляет 270 градусов (для максимально удобного маневрирования при заезде или выезде с подъемного оборудования даже в небольших автосервисах);
система блокировки с полноценными механическими стопорами;
нижняя синхронизация (высота поднятия не ограничивается габаритами автомобиля; меньшая стоимость подъемного оборудования в отличие от автомобильных подъемников с верхней синхронизацией той же грузоподъемности);
немецкая гидравлическая система Bucher;
гнутая усиленная вилка штока цилиндра;
защитный чехол для гидравлики электрокабеля;
троса и цепи с роликами из высоколегированной стали;
розетки на 220 встроенные в станцию подъемника;
в стандартной комплектации: усиленные каретки с удлиненными резиновыми отбойниками (предотвращают возможные повреждения в случае неосторожного открывания двери); шайбы для настройки углов стоек, усиленные анкера 18x220 мм.
Цилиндрические проставки для подхватов в лапы 7 см не входят в стандартную комплектацию, поставляются опционально.
Технические характеристики:
Максимальное расстояние между подхватами: 2550 мм
Высота подъема лап (с подхватами): 1800 (1990) мм
Длина задних лап: 780-1200 мм
Длина передних лап: 780-1200 мм
Масса груза при проверке гидравлики: 4,5 т
Толщина покрашенного металла в стойках: 5,2 мм
Диаметр тросов синхронизации: 9 мм
Расстояние между колонн: 2800 мм
Грузоподъемность: 4 т
Минимальная высота подхвата: 100 мм
Мощность: 2,2 кВт
Напряжение: 220/380В
Гарантия: 24 месяца
Модель: T4S
Двухстоечный подъемник СТОРМ T4s – обладает нижней синхронизацией и грузоподъемностью до 4 тонн, предназначен для подъема легковых автомобилей всех моделей и марок при их техническом обслуживании и ремонте. Модель T4s отличается качественной немецкой гидравликой. Толщина металла в стойках - 5,2 мм, толщина тросов синхронизации - 9 мм.
Особенности:
ширина между стойками - 2800 мм;
минимальная высота подхвата – 100 мм;
лапы усиленные, прямого типа и одинаковой длины. Конец лап оснащен 2-х ступенчатой винтовой настройкой 10-19 см;
разворот лап составляет 270 градусов (для максимально удобного маневрирования при заезде или выезде с подъемного оборудования даже в небольших автосервисах);
система блокировки с полноценными механическими стопорами;
нижняя синхронизация (высота поднятия не ограничивается габаритами автомобиля; меньшая стоимость подъемного оборудования в отличие от автомобильных подъемников с верхней синхронизацией той же грузоподъемности);
немецкая гидравлическая система Bucher;
гнутая усиленная вилка штока цилиндра;
защитный чехол для гидравлики электрокабеля;
троса и цепи с роликами из высоколегированной стали;
розетки на 220 встроенные в станцию подъемника;
в стандартной комплектации: усиленные каретки с удлиненными резиновыми отбойниками (предотвращают возможные повреждения в случае неосторожного открывания двери); шайбы для настройки углов стоек, усиленные анкера 18x220 мм.
Цилиндрические проставки для подхватов в лапы 7 см не входят в стандартную комплектацию, поставляются опционально.
Технические характеристики:
Максимальное расстояние между подхватами: 2550 мм
Высота подъема лап (с подхватами): 1800 (1990) мм
Длина задних лап: 780-1200 мм
Длина передних лап: 780-1200 мм
Масса груза при проверке гидравлики: 4,5 т
Толщина покрашенного металла в стойках: 5,2 мм
Диаметр тросов синхронизации: 9 мм
Расстояние между колонн: 2800 мм
Грузоподъемность: 4 т
Минимальная высота подхвата: 100 мм
Мощность: 2,2 кВт
Напряжение: 220/380В
Гарантия: 24 месяца
Модель: T4S
Характеристики
|
Макс. грузоподъемность, т
|
4 |
|
Высота подъема, мм
|
1990 |
|
Мин. высота подхвата, мм
|
100 |
|
Количество стоек, шт
|
2 |
|
Расстояние между стойками, мм
|
2800 |
|
Синхронизация
|
нижняя |
|
Мощность двигателя, кВт
|
2,2 |
|
Масса, кг
|
650 |








