Четырёхстоечный подъемник T4i-4D2
Описание
https://youtu.be/R6Mz8SIKD4M
Гидравлический четырехстоечный подъемник под слесарные и сход-развальные работы с любыми типами стендов развал-схождения System T4i-4d2 с траверсой в комплекте. Подходит для сход-развала легковых авто, микроавтобусов, внедорожников, ГАЗЕЛЕЙ.
Гидравлическая станция от немецкого производителя "Bucher Hydraulics" работает стабильно, надежно, бывает на 380 и 220 V витающего напряжения.
Подъемник подходит для работы с любыми легковыми автомобилями категории B, даже с самыми тяжелыми внедорожниками, а также с многими коммерческими автомобилями типа газель, спринтер, транзит и т.д.
Расстояние между колоннами 3 м, можно проводить измерения на 3d стендах например Hunter, Техновектор, Hofmann, СТОРМ, System4you даже у самых широких автомобилей.
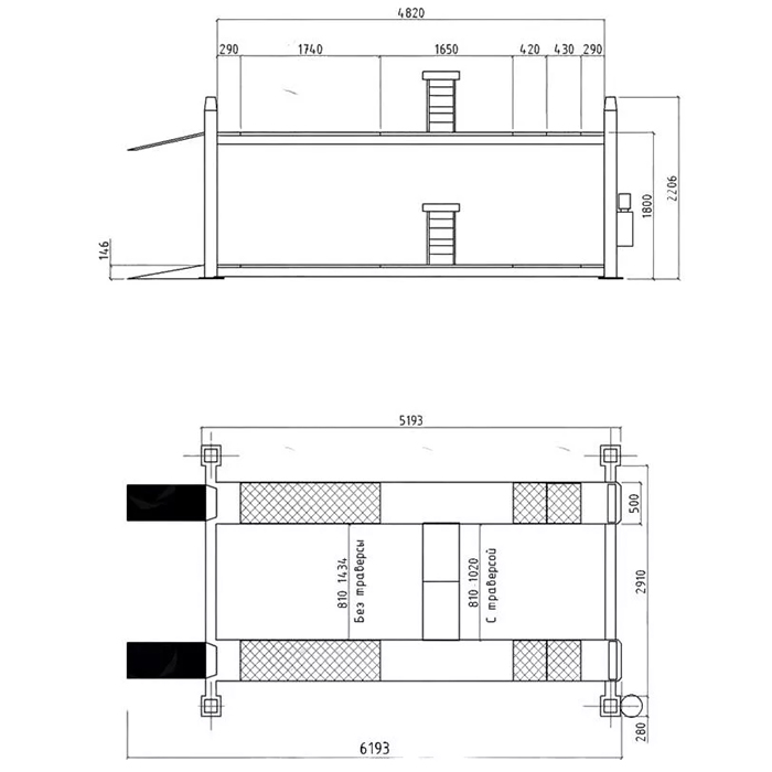
Длина платформ 5 метров. Позволяет выполнять компенсацию биения дисков на автомобилях с длинной колесной базой.
Высота подъема транспортных средств до 1800 мм, грузоподъемность 4000 кг (4 тонны).
Четырехстоечный подъемник имеет целую систему безопасности через стопорные устройства. Разблокировка - рукояткой на управляющей колонне.
Дополнительно четырехстоечный подъёмник System T4i-4D2 оснащён многоуровневой системой безопасности, которая удерживает платформы в случае обрыва одного или нескольких тросов.
Стойки со специальными ребрами жесткости для усиления конструкции и предотвращения деформации.
Оснащен оцинкованными тросами! Риск появления ржавчины без эксплуатации низкий.
Высокий уровень герметичности гидравлической системы обеспечивается качественными конусными соединениями штуцеров, мощной площадкой с клапанами в станции Bucher гидронасоса.
Минимальная высота платформ 146 мм, но с учетом заездов минимальный клиренс около 100 мм.
Гидроцилиндры подъемника и траверсы хонингованы, что значительно повышает их срок службы, особенно при периодической замене масла и по необходимости манжет.
Штуцеры гидросистемы закрыты специальными транспортировочными заглушками, которые исключают попадание пыли и грязи при транспортировке.
Ролики тросовой синхронизации изготовлены из легированной стали – быстро не деформируется и обладают повышенной износостойкостью.
«Ползуны» синтетические рассчитаны на несколько лет использования при периодической смазке для снижения износа от трения.
Четырехстоечный подъёмник T4i-4d2 поставляется в жесткой упаковке, которая снижает вероятность повреждений при транспортировке.
Гидравлический четырехстоечный подъемник под слесарные и сход-развальные работы с любыми типами стендов развал-схождения System T4i-4d2 с траверсой в комплекте. Подходит для сход-развала легковых авто, микроавтобусов, внедорожников, ГАЗЕЛЕЙ.
Гидравлическая станция от немецкого производителя "Bucher Hydraulics" работает стабильно, надежно, бывает на 380 и 220 V витающего напряжения.
Подъемник подходит для работы с любыми легковыми автомобилями категории B, даже с самыми тяжелыми внедорожниками, а также с многими коммерческими автомобилями типа газель, спринтер, транзит и т.д.
Расстояние между колоннами 3 м, можно проводить измерения на 3d стендах например Hunter, Техновектор, Hofmann, СТОРМ, System4you даже у самых широких автомобилей.
Длина платформ 5 метров. Позволяет выполнять компенсацию биения дисков на автомобилях с длинной колесной базой.
Высота подъема транспортных средств до 1800 мм, грузоподъемность 4000 кг (4 тонны).
Четырехстоечный подъемник имеет целую систему безопасности через стопорные устройства. Разблокировка - рукояткой на управляющей колонне.
Дополнительно четырехстоечный подъёмник System T4i-4D2 оснащён многоуровневой системой безопасности, которая удерживает платформы в случае обрыва одного или нескольких тросов.
Стойки со специальными ребрами жесткости для усиления конструкции и предотвращения деформации.
Оснащен оцинкованными тросами! Риск появления ржавчины без эксплуатации низкий.
Высокий уровень герметичности гидравлической системы обеспечивается качественными конусными соединениями штуцеров, мощной площадкой с клапанами в станции Bucher гидронасоса.
Минимальная высота платформ 146 мм, но с учетом заездов минимальный клиренс около 100 мм.
Гидроцилиндры подъемника и траверсы хонингованы, что значительно повышает их срок службы, особенно при периодической замене масла и по необходимости манжет.
Штуцеры гидросистемы закрыты специальными транспортировочными заглушками, которые исключают попадание пыли и грязи при транспортировке.
Ролики тросовой синхронизации изготовлены из легированной стали – быстро не деформируется и обладают повышенной износостойкостью.
«Ползуны» синтетические рассчитаны на несколько лет использования при периодической смазке для снижения износа от трения.
Четырехстоечный подъёмник T4i-4d2 поставляется в жесткой упаковке, которая снижает вероятность повреждений при транспортировке.
Характеристики
|
Макс. грузоподъемность, т
|
4 |
|
Высота подъема, мм
|
1800 |
|
Мин. высота подхвата, мм
|
100 |
|
Количество стоек, шт
|
4 |
1. Вертикальные стойки 4 шт.
2. Горизонтальные платформы (основные трапы) 2 шт.
3. ПЕредние площадки под поворотные круги (сами круги обычно поставляются со стендом развал-схождения) 4 шт.
4. Задние сдвижные платформы со стопорными механизмами.
5. Горизонтальные фермы 2 шт.
6. Заездные платформы с задними противоткатными ограничителями 2 шт.
7. Гидравлическая станция-насос «Bucher hydraulics» 1 шт.
8. Кран для переключения управления подъемник/траверса 1 шт.
9. Траверса грузоподъемностью 2000 кг (2 тонны) 1 шт.
10. Анкерные болты для крепления вертикальных стоек к полу 16 шт.
11. Передние противооткатные ограничители 2 шт.



